Descriere casa vila
Casă superba în stil mediteranean cu 4 camere – Stupini, Brașov
O casă cu personalitate, construită în stil mediteranean, care îmbină eleganța cu funcționalitatea și sentimentul de „acasă.
Este amplasată în Stupini, într-o zonă liniștită și curată, cu vecini de calitate și acces ușor către Brașov.
Terenul are 530mp, iar construcția, desfășurată pe 130 mp utili (170 mp construiți), oferă tot spațiul necesar pentru o familie care își dorește confort, intimitate și o curte generoasă.
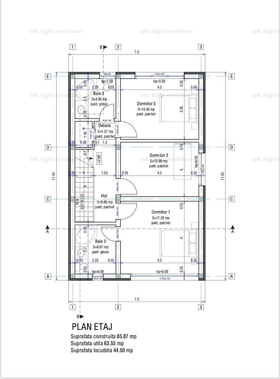
Compartimentare:
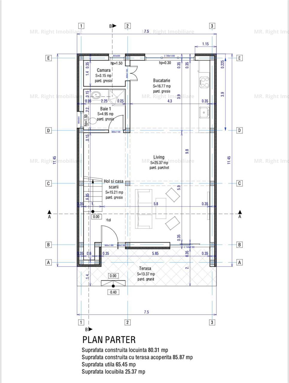
Parterul este gândit pentru viața de zi cu zi – un living amplu și luminos, o bucătărie open space, o baie de serviciu și două spații de depozitare discrete, completate de o terasă de 14 mp placată cu travertin, locul perfect pentru cafeaua de dimineață sau serile petrecute în aer liber.
La etaj, zona de noapte oferă trei dormitoare: unul matrimonial cu baie proprie sau dressing, două dormitoare secundare și o baie principală.
Detalii care fac diferența:
Încălzire în pardoseală, tâmplărie termopan Q-Fort sau Salamander cu 5 camere, finisaje moderne pe care viitorul proprietar le poate alege dintr-un buget dedicat, pentru a adapta casa pe gustul său.
Curtea va fi amenajată complet: spații verzi, pavaj pentru parcările interioare și gard din stâlpi de beton, cu un design modern și aerisit.
Casa este racordată la toate utilitățile – canalizare, apă, gaz și curent 220V – și se vinde de pe persoană fizică, fără TVA.
Este o locuință luminoasă, eficientă energetic, cu o atmosferă caldă și naturală. Perfectă pentru o familie care caută liniște, confort și calitate într-un cadru modern și sigur.
Pentru detalii și programarea unei vizionări, mă poți contacta – Alexandru Dumitrache.
Caracteristici
- Numar Camere: 4
- Zona: Stupini
- Suprafata utila: 130 mp
- Numar Bai: 2
- An Constructie: 2025
- Suprafata Teren: 650 mp
- Clasa Energetica: A
Caracteristici generale
- Acces internet: Fibra optica
- Bucatarie: Da
- Contorizare: Apometre Contor electric Contor gaz
- Destinatie: Locuinta
- Ferestre Casa: Term. PVC
- Geam baie: Da
- Incalzire Casa: Centrala Termica Incalzire prin pardoseala
- Izolatii termice: Exterior
- Materiale: Caramida Porotherm Beton Armat Alte
- Pereti: Faianta Lavabil
- Podele: Parchet Gresie
- Stadiu Finisare: In constructie
- Tip Casa: Individuala
- Tip Curte: Individuala
- Usa intrare: Metal
- Usi: Din Lemn
- Utilitati: Gaz Curent Apa
- Vecinatati Spatii: Zona comerciala Banca Supermarket Cinema Trafic Pietonal Benzinarie Scoala/gradinita Autobuz Spatii industriale Terenuri
- Zidarie: Caramida





















