Descriere apartament
Apartament 2 camere tip studio in Sanpetru
Complet mobilat si utilat | Incalzire in pardoseala
Va propunem spre vanzare un apartament modern, tip studio, cu multiple facitilitati:
DETALII TEHNICE:
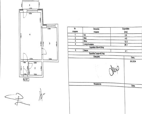
Suprafata utila: 45.6mp
Suprafata balcon: 4.1 mp
Structura: Semidecomandata
Etaj: Mansarda / P + 3E +M
Orientare: Vest
Incalzire prin pardoseala
Localizare: Str. Marin Preda nr. 1, Sanpetru
- Statie de autobuz chiar langa scara
- Magazin, cafenea, frizerie si medic de familie in apropiere
- Gradinite in imediata apropiere
Locuinta este situata la etajul 4/4, tip mansarda, intr-un imobil cu structura solida din caramida de 30 cm, completata de izolatie exterioara de 15 cm, oferind un confort termic foarte bun si costuri reduse la intretinere.Compartimentare eficienta si atmosfera primitoare, potrivita atat pentru locuit, cat si pentru investitie.
Exista si loc de parcare si poate fi achizitionat separat.
Dotari si beneficii:
Se vinde complet mobilat si utilat
Incalzire in pardoseala
Se accepta plata prin credit
Un apartament ideal pentru cei care isi doresc confort, acces rapid la facilitati si o locuinta pregatita pentru mutare imediata.
Pentru mai multe detalii sau programarea unei vizionari, ma puteti contacta la numarul: 0749797492
Caracteristici
- Zona:
- Suprafata utila: 45.6 mp
- Confort: 1
- Compartimentare: semidecomandat
- Etaj: mansarda/4
- Numar Bai: 1
- Numar Balcoane: 1
- Numar Camere: 2
- An Constructie: 2024
Caracteristici generale
- Acces internet: Fibra optica
- Balcoane: Nu este inchis
- Bucatarie: Deschisa Da Mobilata Utilata
- Calorifere: Nu
- Contorizare: Contor electric Contor gaz Apometre
- Destinatie: Locuinta
- Electrocasnice: Aragaz Frigider Hota Masina de spalat rufe TV
- Ferestre: PVC Lemn
- Geam baie: Nu
- Incalzire: Centrala Imobil Incalzire prin pardoseala
- Interfon: Interfon
- Izolatii termice: Interior Exterior
- Lift: Nu
- Mobilat: Complet Stare Buna
- Pereti: Lavabil Faianta
- Podele: Gresie Parchet
- Stadiu Finisare: Finalizat
- Strazi: Asfaltate
- Tip Bloc: Bloc Mixt
- Tip Structura Bloc: Caramida
- Usa intrare: Metal
- Usi: Din Lemn
- Utilitati: Curent Apa Canalizare Gaz CATV Internet
- Vecinatati Spatii: Autobuz Supermarket Fastfood Trafic Pietonal Scoala/gradinita Zona comerciala
- Vedere: Fata













